以下のボタンから該当する内容をご選択ください。
MFPR目黒タワー 1806 のお問い合わせは、住まいの情報館まで
建物管理番号:
住まいの情報館
総合管理部 東京都港区東新橋1-9-2 汐留住友ビル
MFPR目黒タワー 1806 の賃料・その他費用について
| 賃料 | 47万円 |
|---|
| 管理費 | 15,000円/月 |
|---|---|
| 共益費 | |
| 雑費 |
| 敷金 | 1ヶ月 |
|---|---|
| 礼金 | 1ヶ月 |
| 敷引 | - |
| 鍵交換代等 | |
|---|---|
| 保証金 | - |
| 保証金償却 |
| その他一時金 | |
|---|---|
| ランニングコスト |
MFPR目黒タワー 1806 の物件概要
| 物件種別 | マンション |
|---|---|
| 物件名/部屋番号 | MFPR目黒タワー 1806 |
| 所在地 | 東京都目黒区目黒1丁目24-9 |
| 交通 |
山手線 目黒駅 徒歩 7分 |
| 築年月 | 2008年02月 |
|---|---|
| 建物構造 | 鉄筋コン |
| 建物階建/所在階 | 18階/25階建(地下2階) |
| 総戸数 | - |
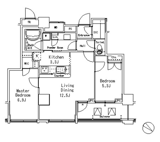
| 間取り | 2LDK |
| 間取り内訳 | 2LDK 開口向き北東 |
| 専有面積 | 64.34㎡ |
|---|---|
| バルコニー | |
| 主要採光面 | |
| 駐車場 | - |
| バイク置場 | |
| 駐輪場 |
| 特記事項 | |
|---|---|
| 設備 | エアコン/室内洗濯機置場/バス・トイレ別/追焚機能/浴室乾燥機/バルコニー/フローリング/ウォークインクローゼット/オートロック/エレベーター/宅配ボックス/バイク置き場あり/インターネット接続可/インターネット(ADSL)/BSアンテナ/CSアンテナ/CATV/管理人(日勤)/タワーマンション/フロントサービス |
| 温泉 | |
| リフォーム履歴 | |
| リノベーション履歴 | |
| 周辺環境 | - |
| 備考 | フリーレント1ヶ月。短期解約違約金あり/保証会社必須:法人未加入時+敷1/小型犬1匹迄飼育可+敷1/、普通借家[契約期間]24ヶ月 |
| 現況 | 空室 |
|---|---|
| 入居日 | 2025/12上 |
| 取引態様 | 貸主 |
| 賃貸区分 | マンション |
|---|---|
| 契約期間 | |
| 更新料 | 新賃料の1ヶ月 |
| 入居条件 | [フリーレント] 1ヶ月 ペット相談/事務所不可 |
|---|---|
| フリーレント | |
| 保険等加入 | 要 |
| 管理方式 | |
| 賃貸保証 | |
| 設備保証 | |
| クレジットカード決済 | |
| 一括型共同住宅 | |
| 物件番号 | 264783 |
| 情報更新日 | 2025-12-01 |
|---|
| 公開満了日 |
|---|
MFPR目黒タワー の地図
東京都目黒区目黒1丁目24-9 周辺の地図
※地図の場所は、物件の住所情報を基に自動表示しております。実際の物件所在地とは異なる場合がございますので、正確な場所については不動産会社までお問い合わせください。
MFPR目黒タワー のお問い合わせは、住まいの情報館まで
建物管理番号:
住まいの情報館
総合管理部 東京都港区東新橋1-9-2 汐留住友ビル
賃貸物件のご相談は住まいの情報館へ。IT重説も可能です。土・日営業。
| 担当店舗 | 株式会社ダーウィンプラス |
|---|---|
| Tel/Fax | Tel: 03-5565-7771 / Fax: 03-5148-7771 |
| 所在地 | 〒104-0061 東京都中央区銀座7丁目15-5 |
| アクセス | 東京メトロ日比谷線 / 東銀座駅 徒歩5分 |
| 営業時間 | 10:00~19:00 / 水曜定休 |
| 免許番号 | 国土交通大臣免許(2)第8738号 |
| 所属団体名 | 全日本不動産協会 |
MFPR目黒タワー の他の空室
MFPR目黒タワー 1408
1LDK / 44.64㎡
賃料28.5万円
管理費 10,000円/月
敷金 1ヶ月 / 礼金 1ヶ月
MFPR目黒タワー 1806
2LDK / 64.34㎡
賃料47万円
管理費 15,000円/月
敷金 1ヶ月 / 礼金 1ヶ月
現在閲覧中
MFPR目黒タワー 2101
2LDK / 105.83㎡
賃料80万円
管理費 50,000円/月
敷金 1ヶ月 / 礼金 1ヶ月
MFPR目黒タワー 608
2LDK / 56.24㎡
賃料41.5万円
管理費 15,000円/月
敷金 1ヶ月 / 礼金 1ヶ月
MFPR目黒タワー 2402
2SLDK / 109.87㎡
賃料80万円
管理費 50,000円/月
敷金 1ヶ月 / 礼金 2ヶ月
MFPR目黒タワー 2502
3LDK / 229.28㎡
賃料250万円
管理費 なし
敷金 1ヶ月 / 礼金 2ヶ月